Zoning

Balti, Moldova Production Facility (Zoning)

14 Strada Stefan Neaga is located directly off the highway entrance into the City of Balti, Moldova. The multipurpose facility will one day become the home for our companies. The building consists of three floors with each floor comprising 500 square meters. The lofted ceiling above the third floor will accommodate storage space in the future. A small underground basement area will serve as a utility room for our geothermal energy efficient heating system. We purchased the property in August of 2018 to develop a digital media production facility to support a European Cultural Mobility Work & Travel Program. Our plans are ambitious and the timing for the complete building construction is dependent upon obtaining additional resources. The multipurpose facility incorporates offices, meeting rooms, a commercial kitchen (cooking shows) and hostel setup to house students and professionals while working and/or learning creative skills in our digital media center.
Phase I construction requires the completion of the work that began in October of 2018 when several small structures and tress were taken down and removed. In September 2019, work began to remove tree stumps; to knock down and remove a small partially collapsed house; and to level and grade the land. Completed 09/25/19.
Phase II involves building a retaining wall to support the hill at the back of the building; drilling and installing the ground loops for the geothermal heating and cooling system; digging the small basement area as a utility room; and laying the building foundation and setting the structural steel columns to support the first and second floors.
Phase III involves the completion of the exterior building structure for the first and second floors so that interior work can continue during the winter months. Resources permitting, we will also complete the exterior construction of the third floor and the building roof.
Phase IV involves the installation of the geothermal heat pump and ductwork. Interior construction for the second floor including plumbing, heating, air conditioning, electrical, floors and walls.
Phase V involves interior furnishing for the operation of the second floor as per our Zoning Plans. Completion of the exterior Construction for the third floor and pitched roof.
Phase VI involves the installation of the HVAC ductwork. Interior construction for the third floor including plumbing, electrical, floors and walls.
Phase VII involves interior furnishing for the operation of the third floor as per our Zoning Plans.

Timeline of Progress

1
ZONING GROUND FLOOR
The ground floor of the building will support an automotive repair business. The automotive work floor ceiling is 4 meters high and is completely enclosed. There are two areas (Blue) for automotive repair. Each area is open and has been setup with two lifts. At the far end of the left side of the first floor is one enclosed work area for auto body repairs (Preparation of Painting) and a second enclosed Paint Booth. On the far right side of the first is one open area for straightening, welding and car disassembly (i.e. parts) and a second work area for Cleaning and Polishing. The large center area labeled as Empty Space contains one subfloor work area (i.e. trench) for repair of larger vehicles such as buses. The commercial auto center will service and maintain our Cultural Mobility Work & Travel fleet of vehicles.

ZONING SECOND FLOOR
The second floor is comprised of 500 square meters. The left hand side and the back of the building will not have windows to control lighting during production. Our full sized commercial kitchen will feed our Cultural Mobility Work & Travel Program Guests. Culinary Artists will be invited to dazzle audiences with the preparation of their signature dish.
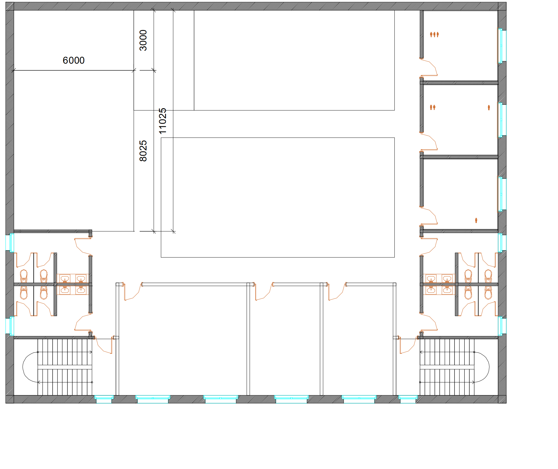
Our studio camera crews will be right there to record all of the action. Flexibility and portability are two key factors in our interior floor design. Portable Kitchen Islands separating the dining and cooking areas can be pushed away to open up free flowing space throughout the floor. The islands will be used to prepare and serve food; as table tops while filming product review videos and as comfortable seating areas when used with bar stools. The dining area extends towards the front of the building so that during production of our cooking shows, the cameras have enough room to film a wide shot. The dining area flows into the Large Open Office Area to create a Loft Style Office. We designed our floor layout to achieve maximum collaboration and the free flowing exchange of ideas. In fact, only the sleeping rooms and the Multimedia Studio are enclosed. Five dedicated sleeping rooms and one multipurpose conference room that can serve as an additional sleeping room during peak demand can accommodate as many as thirty-six guests. The Multimedia Studio is a scaled down version of the layout for the third floor once the building is complete.
2

3
ZONING THIRD FLOOR
The third floor is comprised of Production Studio Space and additional sleeping quarters. There are five (5) sleeping rooms with the same layout as the second floor and one larger room for VIP guests. We envision dividing the Production Studio Space into several smaller rooms including one large production room; photography studios and green rooms; sound and recording studio; a digital editing room and a small kitchen. We will not make our final design on layout until after working in the smaller Production Studio on the second floor.

Sleeping room

Location

Moldova, Balti, Ștefan Neaga, 14 Strada Stefan Neaga